Канализационные лестницы КЛ-1 (Л-1, Л-18) для колодцев

Канализационная лестница КЛ-1 для колодцев - фото изделия
Фото канализационной лестницы КЛ-1
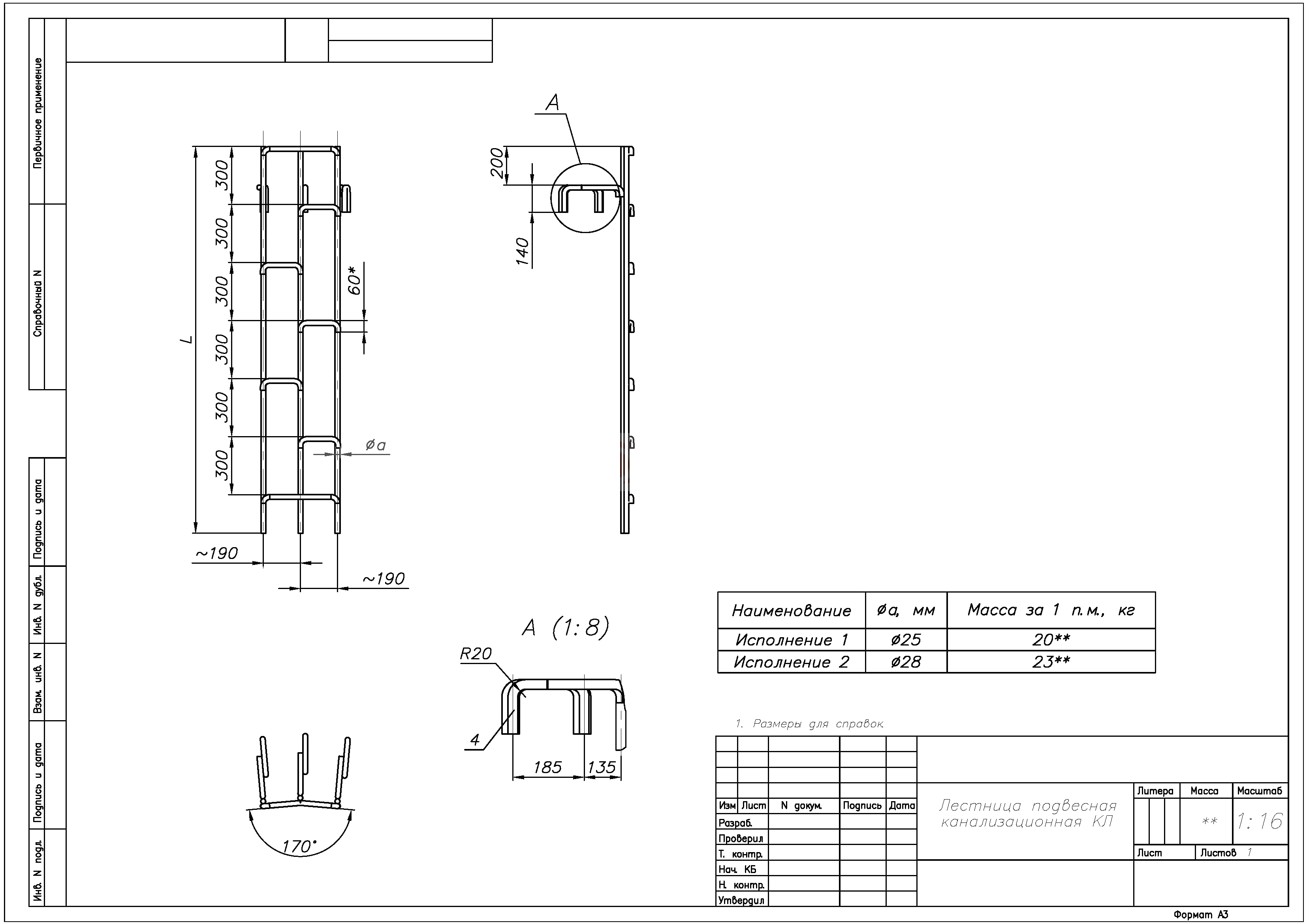
Чертеж канализационной лестницы КЛ-1

Общая информация и назначение

Канализационные лестницы КЛ-1 (Л-1, Л-18) используются для спуска к инженерному оборудованию и запорной арматуре в канализационных смотровых колодцах. Системы коммуникаций, расположенные под землей, имеют сложную разветвленную структуру. В местах поворотов, понижения уровня, установки запорной арматуры обустраиваются смотровые колодцы.

Глубина колодцев может превышать 5 метров и для того, чтобы опуститься вниз требуется специальные конструкции – канализационные лестницы КЛ-1. Они обеспечивают необходимый уровень безопасности и комфорта. Непростые условия эксплуатации выдвигают производителям ряд требований, которые строго соблюдаются. Это позволяет гарантировать удобный доступ персонала с инструментом и оборудованием к инженерным системам.

Основные характеристики

  • Тип лестницы: КЛ-1 (Л-1, Л-18)
  • Ширина лестницы: 410 мм
  • Высота ступени: 330 мм
  • Длина: от 100 см до 1170 см
  • Материал: Высококачественная сталь
  • Толщина прутков: не менее 25 мм

Особенности и преимущества канализационных лестниц КЛ-1

Особенностью лестницы для колодцев является ее оригинальная конструкция. КЛ-1 имеет мощные крюки, которые позволяют надежно зафиксировать конструкцию в горловине колодца и обеспечивают повышенную грузоподъемность. Другой особенностью является два параллельных пролета со ступенями, что позволяет обеспечить более удобный спуск.

Среди основных преимуществ канализационных лестниц:

Стоимость канализационных лестниц

Предлагаем купить канализационные лестницы по низким ценам с гарантией качества. В нашем ассортименте конструкции длиной от 100 до 1170 см, шириной 41 см. Удобный шаг ступенек обеспечивает комфортный спуск специалистов на дно колодца.

В каталоге представлено более 100 видов лестниц, что позволит подобрать модель в точном соответствие с реализуемым проектом. Все лестницы соответствуют требованиям ГОСТа и строительной нормативной документации.

Загрузка данных о продукции...

*Цены указаны от минимальной стоимости и не являются публичной офертой. Финальная цена зависит от объема заказа и условий поставки.

Оформление заказа и консультация

На данный момент в корзине 0 штук товаров.

Для оформления заказа и детального просмотра выбранных товаров, пожалуйста, перейдите в корзину или свяжитесь с нашим менеджером.

Наши специалисты оперативно обработают ваш запрос, уточнят финальную стоимость (с учетом объема и доставки) и помогут завершить покупку.

Вы можете оставить заявку на главной странице или позвонить по телефону:

+7 (965) 555-99-66